Page suivante
Page précédente
Le Blanc-Mesnil (93150)

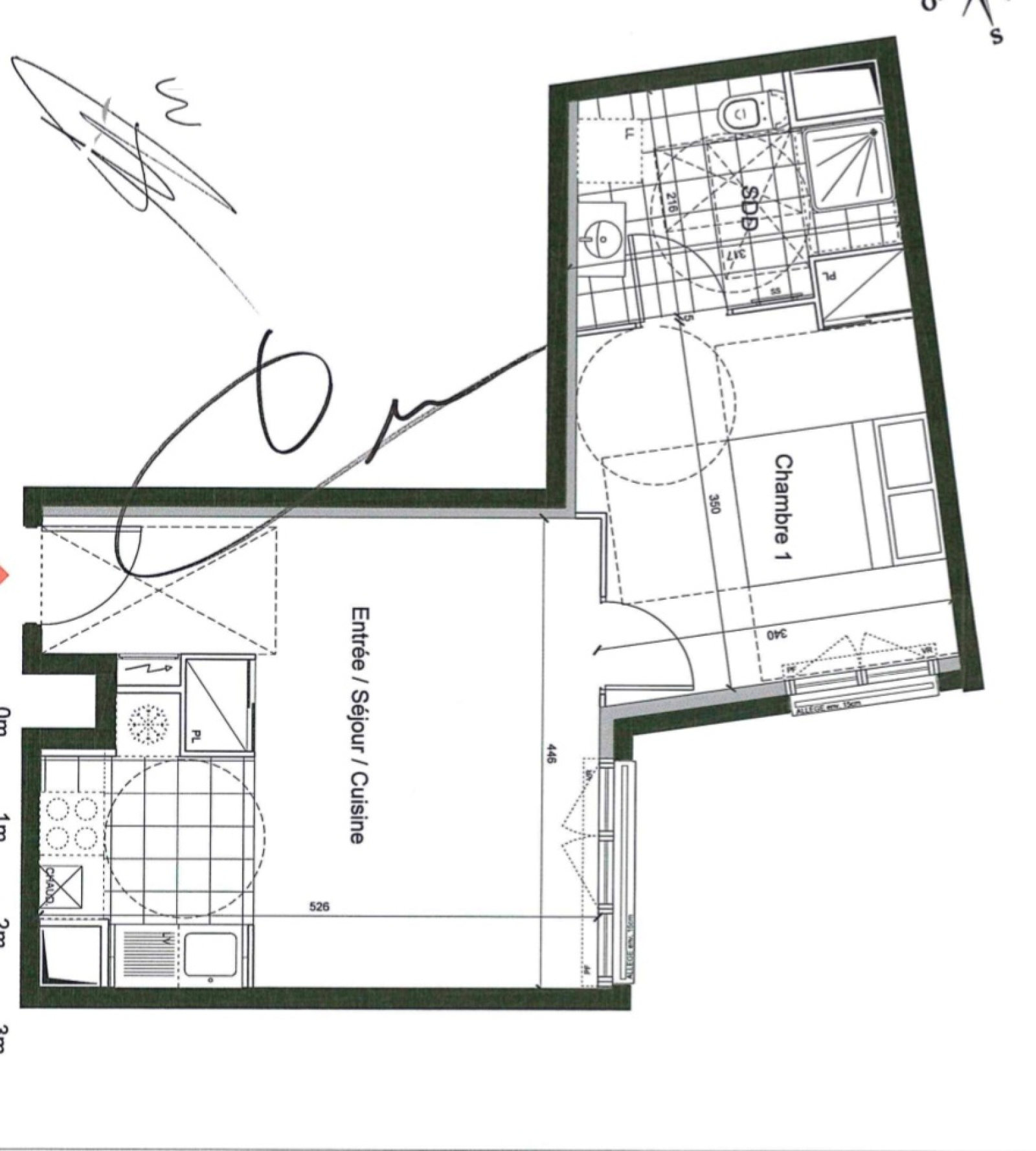
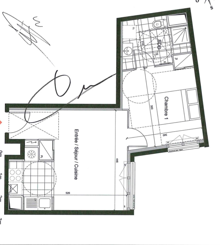
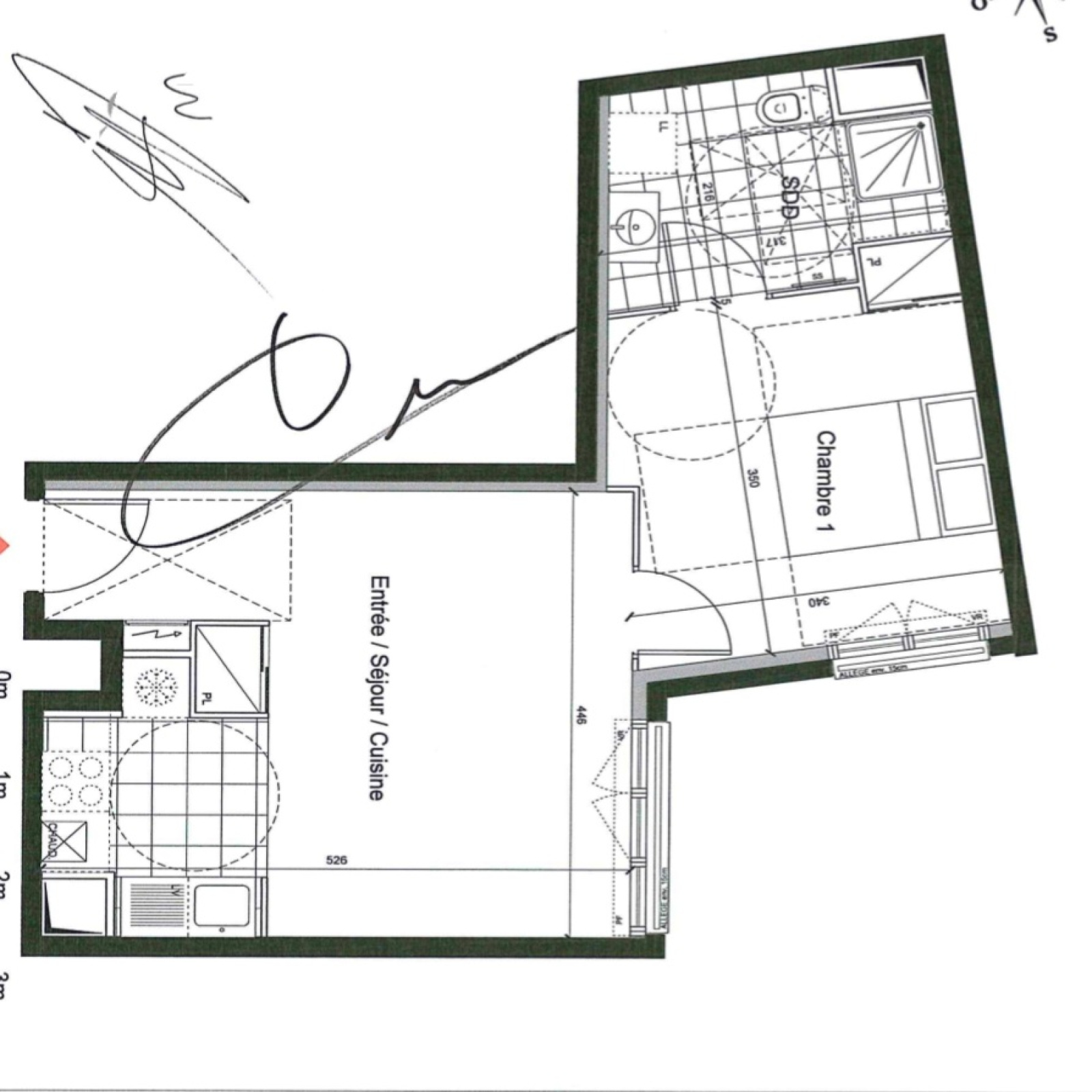
Appartement 2 pièce(s) 1 chambre(s) 39.71 m²

1
Ascenseur
1
200 000 €
Réf 92-98 avenue du 8 mai 1945

Au sein de la résidence art déco « L’Oiseau Blanc », tout juste livrée, à proximité immédiate des commodités de la ville  et du musée de l’Air et de l’Espace, à moins de 500 m du collège Descartes et école maternelle Jules Guesdes, à 100m du futur métro Grand Paris Express, au 5è étage avec ascenseur, beau 2 pièces lumineux de 39.71m2 comprenant séjour avec cuisine US, une chambre, une salle d'eau, Une cave et un parking complètent ce bien.

Pour habiter ou investir au Blanc-Mesnil, le programme immobilier L'Oiseau Blanc possède le label énergétique RT 2012.

A NE PAS MANQUER! APPELEZ-NOUS, PI GROUP VOUS FERA DECOUVRIR CET APPARTEMENT

Bilan énergétique

Diagnostics énergetiques
A propos de ce bien Caractéristiques de ce bien
  • Surface 39,71 m²
  • carrez 39,71 m²
  • 1 chambre(s)
  • 1 salle(s) d'eau
  • construit en 2022
  • cuisine américaine
  • Chauffage individuel : radiateur (electrique)
  • 5ème étage
  • 6 étage(s)
  • ascenseur
  • cave
  • visiophone
  • interphone
  • accès handicapé

Info copro

Copropriété
  • Copropriété Oui
  • Lot n° A501

Financier

Informations financières
Prix de vente honoraires TTC inclus 200 000 €

Autour du bien

Découvrez le quartier

Simulation

Calcul des mensualités
* Champs obligatoires
PI GROUP Agence